Skip to Content
Target Catering Equipment offer an array of Catering Equipment and Commercial Kitchens
Home
Design
Induction Suites
Commercial Induction Range
Bespoke Commercial Induction Suites
Induction Wok Cooker Ranges
Standard Induction - Target-SPB - Stock Pot Boilers
Standard Induction - Target T900 - 4 Zone Range
Standard Induction - Target T900-XL - 4 Zone Range
Standard Induction - Target TR-E - 4 Zone Range with Plancha
Standard Induction - Target TR-24 - 6 Zone Range
Standard Induction - Target TR-6 - 6 Zone Range
Standard Induction - T8-Series - Wok Ranges
Bespoke Grill & Frying Suites
Target Products
Products
Carbo Clean® - Recirculation Filtration Canopies
Coffee Stations
Commercial Induction Ranges
Dishwash Tabling
Hot Cupboards
Stainless Steel Gantries
Stainless Steel Hand Wash Sanitisation Stations
Stainless Steel Sinks
Stainless Steel Tables
Stainless Steel Wall Cupboards
Quick Serve Kitchen Systems
Kitchen Extraction
Commercial Kitchen Extraction
Recirculating Kitchen Extraction
Ventless Commercial Kitchen Equipment
Shop - Specialist Products
All Products
Catering Consumables, Spares & Accessories
Commercial Induction Ranges | Target Catering Equipment
Used and Discounted Catering Equipment
Charcoal Ovens | Josper
Commercial Electric Fryers | FriFri
Convection Ovens | Blue Seal Turbofan
Electric Griddles & Planchas | Instinct Induction Griddle by Welbilt
High Speed Ovens | CiBO+ by Lincat
High Speed Ovens | Merrychef
High Speed Ovens | Turbochef
Hot Holding Systems | Panther by Lincat
Recirculating Ventilation Canopies | Carbo Clean
Special Offers
Product Video Library
Company & More!
About Us
Blog
Live Cooking - Events
Portfolio
(0)
QUOTE LIST (0)
CONTACT US
(0)
QUOTE LIST (0)
CONTACT US
Target Catering Equipment offer an array of Catering Equipment and Commercial Kitchens
Home
Design
Induction Suites
Commercial Induction Range
Bespoke Commercial Induction Suites
Induction Wok Cooker Ranges
Standard Induction - Target-SPB - Stock Pot Boilers
Standard Induction - Target T900 - 4 Zone Range
Standard Induction - Target T900-XL - 4 Zone Range
Standard Induction - Target TR-E - 4 Zone Range with Plancha
Standard Induction - Target TR-24 - 6 Zone Range
Standard Induction - Target TR-6 - 6 Zone Range
Standard Induction - T8-Series - Wok Ranges
Bespoke Grill & Frying Suites
Target Products
Products
Carbo Clean® - Recirculation Filtration Canopies
Coffee Stations
Commercial Induction Ranges
Dishwash Tabling
Hot Cupboards
Stainless Steel Gantries
Stainless Steel Hand Wash Sanitisation Stations
Stainless Steel Sinks
Stainless Steel Tables
Stainless Steel Wall Cupboards
Quick Serve Kitchen Systems
Kitchen Extraction
Commercial Kitchen Extraction
Recirculating Kitchen Extraction
Ventless Commercial Kitchen Equipment
Shop - Specialist Products
All Products
Catering Consumables, Spares & Accessories
Commercial Induction Ranges | Target Catering Equipment
Used and Discounted Catering Equipment
Charcoal Ovens | Josper
Commercial Electric Fryers | FriFri
Convection Ovens | Blue Seal Turbofan
Electric Griddles & Planchas | Instinct Induction Griddle by Welbilt
High Speed Ovens | CiBO+ by Lincat
High Speed Ovens | Merrychef
High Speed Ovens | Turbochef
Hot Holding Systems | Panther by Lincat
Recirculating Ventilation Canopies | Carbo Clean
Special Offers
Product Video Library
Company & More!
About Us
Blog
Live Cooking - Events
Portfolio
Home
Design
Folder: Induction Suites
Back
Commercial Induction Range
Bespoke Commercial Induction Suites
Induction Wok Cooker Ranges
Standard Induction - Target-SPB - Stock Pot Boilers
Standard Induction - Target T900 - 4 Zone Range
Standard Induction - Target T900-XL - 4 Zone Range
Standard Induction - Target TR-E - 4 Zone Range with Plancha
Standard Induction - Target TR-24 - 6 Zone Range
Standard Induction - Target TR-6 - 6 Zone Range
Standard Induction - T8-Series - Wok Ranges
Bespoke Grill & Frying Suites
Folder: Target Products
Back
Products
Carbo Clean® - Recirculation Filtration Canopies
Coffee Stations
Commercial Induction Ranges
Dishwash Tabling
Hot Cupboards
Stainless Steel Gantries
Stainless Steel Hand Wash Sanitisation Stations
Stainless Steel Sinks
Stainless Steel Tables
Stainless Steel Wall Cupboards
Quick Serve Kitchen Systems
Folder: Kitchen Extraction
Back
Commercial Kitchen Extraction
Recirculating Kitchen Extraction
Ventless Commercial Kitchen Equipment
Folder: Shop - Specialist Products
Back
All Products
Catering Consumables, Spares & Accessories
Commercial Induction Ranges | Target Catering Equipment
Used and Discounted Catering Equipment
Charcoal Ovens | Josper
Commercial Electric Fryers | FriFri
Convection Ovens | Blue Seal Turbofan
Electric Griddles & Planchas | Instinct Induction Griddle by Welbilt
High Speed Ovens | CiBO+ by Lincat
High Speed Ovens | Merrychef
High Speed Ovens | Turbochef
Hot Holding Systems | Panther by Lincat
Recirculating Ventilation Canopies | Carbo Clean
Special Offers
Product Video Library
Folder: Company & More!
Back
About Us
Blog
Live Cooking - Events
Portfolio
CONTACT US
British manufactured Commercial Catering Equipment (Copy)
Target Catering Equipment specialise in designing commercial kitchens  (Copy)
Modern commercial kitchen design with stainless steel finishes  (Copy)
Fully equipped commercial kitchen ready for service  (Copy)
Spacious commercial kitchens for high-volume food production (Copy)
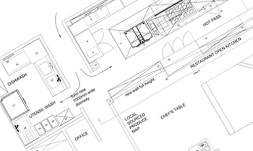
Custom commercial kitchen design plan with 3D rendering available (Copy)
State-of-the-art catering equipment setup in a professional kitchen (Copy)
Our kitchen fitters will complete your commercial kitchen installation quickly and efficiently (Copy)
Innovative commercial kitchen design with workflow optimisation (Copy)
high-performance catering equipment in use by chefs (Copy)
Complete commercial kitchen installation by Target Catering Equipment  (Copy)
Ergonomic commercial kitchen layout for streamlined workflow (Copy)
Target Catering Equipment - Designed kitchen with integrated catering equipment (Copy)
Target Catering Equipment Offer commercial kitchen design, enquire with us today.  (Copy)
Expert commercial kitchen installation with ventilation systems (Copy)
Target Catering Equipment - Designed prep zone with integrated refrigeration units (Copy)
From design to installation of commercial kitchens, we have you covered from start to finish. (Copy)
Industrial-grade catering equipment in a professional kitchen setting (Copy)
Installation of Commercial Kitchen Ventilation Systems  with External Extract Routes (Copy)
Hygienic stainless steel surfaces in a bespoke kitchen design  (Copy)

ABOUT TARGET

BLOG

TERMS & CONDITIONS

PRIVACY POLICY

COOKIES POLICY

HGCRA TERMS AND CONDITIONS

WEBSITE TERMS OF USE

 
 

GET IN TOUCH…

Tel: 01452 410 447 or Email

Unit 1 Ashville Trading Estate, Bristol Road, Gloucester GL2 5EU

 
 
Request for Quote
Please provide your contact details and we will contact you about your request for a quote
Name *
What is your position within the company?
Delivery Address *
Confirmation of Consent *
I agree to be opted in to receive communications from Target Catering Equipment. I understand that this means Target Catering Equipment will contact me with relevant content based on the information I have provided above. I have read and understand the privacy statement on the Target Catering Equipment website and would like to confirm my consent.
Type the word EARTH in the field below to help us filter spam.

Thank you for submitting a quote request - A member of our team will contact you shortly with an official quote.

© 2025 Pedrette Engineering Limited. T/A Target Catering Equipment. All rights reserved.